



















Цена за м2: 790 $
Дніпровський
Слобожанське
Милитопольская
Продається ділянка з
недобудованим будинком в
котеджному містечку 'Золоті
Ключі'.
У центрі котеджного містечка по вулиці
Мелітопольська продається двоповерховий
будинок з критим басейном, сауною,
гаражем та бомбосховищем/підвалом
Загальна площа будинку S = 620 м² і
розташована на ділянці S = 12 соток
Будинок побудований за індивідуальним
архітектурним проектом вартістю 10 000$
Планування будинку:
перший поверх (S = 339 м²) - гараж,
гардеробна, передпокій, коридор, вітальня,
їдальня, коридор, ігрова кімната, перший
санвузол, кухня, комора, роздягальня,
другий санвузол, сауна, душова кімната,
басейн та тераса
другий поверх (S = 142 м²) - хол, гостьова
кімната, кабінет, коридор, перша спальня з
гардеробною та санвузлом, друга спальня з
гардеробною та санвузлом, третя спальня з
гардеробною та санвузлом та балкон
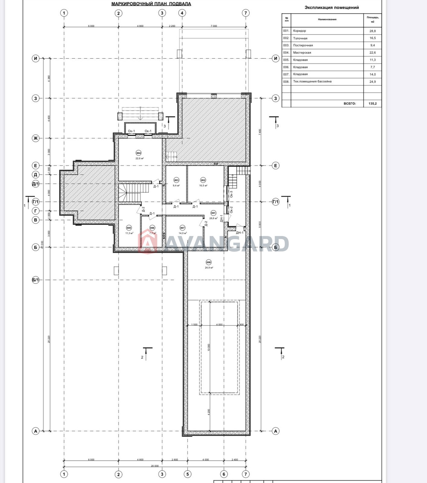
цокольний поверх (S = 135 м²) - коридор,
котельня, пральна кімната з ліфтом для
білизни, майстерня, три комори та технічне
приміщення басейну
На даному етапі закінчено будівництво
цокольного та першого поверхів, залито
чашу басейну та армований пояс першого
поверху.
Комунікації:
- центральна вода;
- центральна каналізація;
- газ вулицею;
- додатково прокладено кабель із
запланованою потужністю будинку на P = 40
кВт від ТП;
- оптоволоконний інтернет
З усіх питань із задоволенням відповім по
телефону

Оптимальный выбор домов, дач и земельных участков
Предложим лучший вариант в городе или пригороде

Большой выбор земельных участков для строительства вашего нового дома
Выбираем для вас земельный участок, предлагаем услуги дизайна и строительства домов под ключ

Полное юридическое сопровождение клиента
Сопровождение клиента от момента заявки, в момент и после совершения сделки

10% скидка на продажу и покупку недвижимости взамен
Компания предоставляет комплексное решение по продаже и покупке новой недвижимости взамен