



















Цена за м2: 933 $
Дніпро
Яворницького
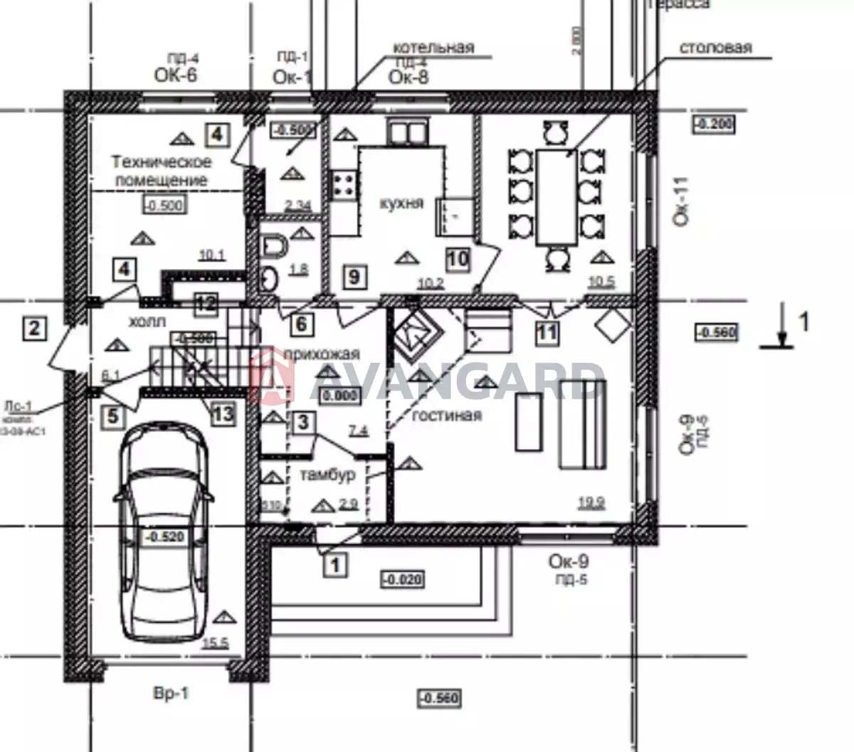
У продажу сучасний, цегляний затишний будинок- повна чаша загальною площею 150м. кв. Повністтю автономний, енергонезалежний будинок у тихому місці, вдалині від інфраструктурних обєктів у м. Підгородне. У двоповерховому будинку є чотири окремих спальні, просторна зала з каміном, кухня, їдальня, два сан. вузла на кожному поверсі, тех. приміщення для зберігання та гараж. Всі кімнати з затишними меблями та сучасною технікою. У дворі заїзд та паркування паркінг для двох машин, на ділянці 8,5 сот зроблено ландшафтний дизайн з газоном та гойдалками. Комфорт досягається зовнішним утепленням будинку, теплою підлогою, інверторними кондіціонерами. Сонячні панелі на даху, власна свердловина глибиною 18м з водоочищенням та септик є запорукою енергонезалежности та автономності цього будинку. Для комбінованої варильної поверхні на кухні використовується газовий балон. Будинок продається з меблями та технікою: дивани, шафи, кроваті, столи, холодильники, посудомийка, пральна машина, бойлер, морозильна камера тощо. Потрібно тільки перевезти особисті речі та зразу можна жити без додаткових витрат на меблі, техніку.
ТЕХНІЧНЕ ЗАБЕЗПЕЧЕННЯ БУДИНКУ:
-380В, 19кВт;
-оформлений «зелений тариф»;
-трьох зонний, двонаправлений ел. лічильник.
Опалення:
-тепловий насос
-камін на дровах із тепловою «сорочкою» на радіатори;
-два кондиціонери на 1-му та 2-му поверхах;
-Ел. котел, 3-х фазний 10-15кВт на радіатори (у резерві, не задіяний);
-Ел. котел, 1-фазний 6кВт на теплі підлоги (в резерві, не задіяний).
-Ел. бойлер на 100л.
Енергонезалежність:
-сонячні панелі 24 шт. на 6 кВт;
-Гібридний інвертор на 8 кВт;
-Акумулятори на 6,5 кВт.
Водопостачання:
-Свердловина 18м;
-насосна станція Pedrollo (Італія)
Водоочищення:
-Колона з знезалізнення. завантаженням 28л.;
-Колона з катіон. смолою Hyd 25л.

Оптимальный выбор домов, дач и земельных участков
Предложим лучший вариант в городе или пригороде

Большой выбор земельных участков для строительства вашего нового дома
Выбираем для вас земельный участок, предлагаем услуги дизайна и строительства домов под ключ

Полное юридическое сопровождение клиента
Сопровождение клиента от момента заявки, в момент и после совершения сделки

10% скидка на продажу и покупку недвижимости взамен
Компания предоставляет комплексное решение по продаже и покупке новой недвижимости взамен