













Цена за м2: 1 085 $
Львовская
Львов
Шевченківський
Брюховичі мкр.
Брюховичі / Широка вул., 22
Продаж комерції Брюховичі в ЖК Грінвуд-3.
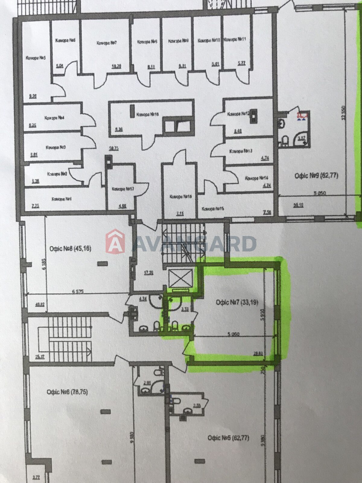
Загальна площа 33 м.кв.
Здача 1кв.2026р.
Секція 7.
Ціна 36 022$.
Дахова котельня, цегляні стіни, монолітний каркас. Престижне курортне містечко з розвиненою інфраструктурою. Об'єкт має чудову локацію,що ідеально підходить для розвитку бізнеса, будь- якого напрямку: салон краси,магазин,кафе,офіс.Це ідеальний варіант для тих хто шукає приміщення для власного бізнесу.Житловий комплекс вважається одним з найкращим завдяки малоповерхової забудови і комфортної інфраструктури.5-поверхові будинки з ліфтами,панорамні вікна, балкони та тераси. Поруч брюховицький ліс,озеро

Большой выбор объектов коммерческой недивижмости
Для ведения существующего бизнеса или начала нового дела

Возможность рассрочки и кредитования
Клиенты могут получить удобную схему покупки или инвестирования

Полное юридическое сопровождение клиента
Проверяем объект, готовим все необходимые документы, обеспечиваем полное юридическое сопровождение сделки

Доверительное управление объектом недвижимости
Обеспечивем прибыльность переданной в управление недвижимости