























Ціна за м2: 583 $
Дніпро
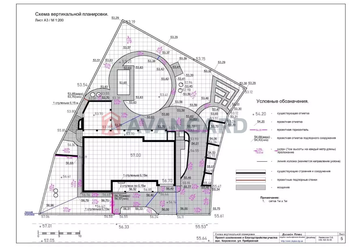
Прибережна
Початок Обухівки (до центру Дніпра 12 км) тихе та затишне місце.
Вул Прибережна 32
15 соток кадастровий номер
Общая площадь строений 340
Площа будинку 240 (+ підвал 60 + альтанка 48) заведено 380V, 36 кіловат.
2 свердловини - одна для будинку, друга для літа (полив лазня, літня кухня і т. д.)
Електрика, сигналка та відео розведення є. Будинок - стіни силікатна цегла, базальтові плити, катерининський цегла, товщина стін 55см. Каналізація по будинку проведена. Зливні ями окремо для будинку, окремо для альтанки, літньої кухні та лазні.
Зливні ями для дощової води. Дах утеплений мін ватою 200-250. Стіни після машинной штукатурки. Дом під чістову відділку. Газова магістраль проходе по межі участка є можливість підключення!!!
Друга лінія від річки Дніпро. Пляж 200м доглянутий ландшафтом. Ліс у 3 х хвилинах
У подарунок ландшафтний дизайн проект з поливальною системою дільниці!

Оптимальний вибір будинків, дач та земельних ділянок
Запропонуємо найкращий варіант у місті чи передмісті

Великий вибір земельних ділянок для будівництва вашого нового будинку
Вибираємо для вас земельну ділянку, пропонуємо послуги дизайну та будівництва будинків під ключ

Повний юридичний супровід клієнта
Супровід клієнта від моменту заявки, у момент та після здійснення угоди

10% знижка на продаж та купівлю нерухомості взамін
Компанія надає комплексне рішення щодо продажу та купівлі нової нерухомості взамін