



















Ціна за м2: 814 $
Київська
Бориспільський
Дударків
провулок Рильського
Продається 2-поверховий будинок, 24 км від Києва по Бориспільській трасі в с. Дударків, провулок Рильського
Приватний будинок проекту VilnaBud із залізобетонних конструкцій «Сварог» розташовано на ділянці 0,12 га.
Мій дім - моя фортеця.
Будинок має вдале розташування, біля нього є вся необхідна інфраструктура: магазини, школа, відділення Нової Пошти, зупинка транспорту.
Сучасний будинок побудований у 2024р. з якісних матеріалів та відповідає всім викликам сьогодення: будинок слугуватиме надійним укриттям, маяючи разом з тим, сучасний дизайн та оздоблення:
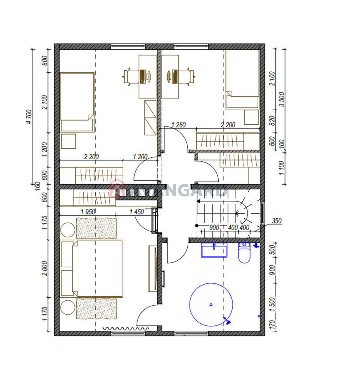
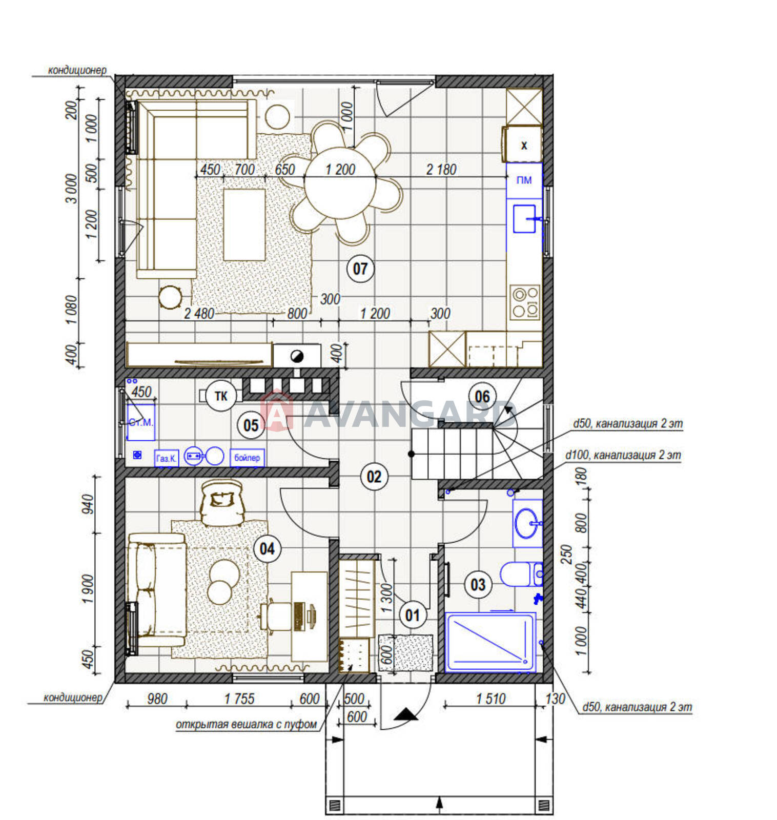
- площа будинку 129 кв.м
- дім з бетону (стіни та перекриття - залізобетон з гарантією від заводу у 100 років)
- фундамент: стрічка + монолітна плита
- дах: металочерепиця, утеплений мінватою 2х100 , зроблена гідроізоляція,
- фасад: утеплений мінватою 150 , що забезпечує кращу терморегуляцію, шумоізоляцію, захист від шкідників та механічних пошкоджень в порівнянні з пінопластом на газоблоках.
- вікна подвійний склопакет WDS і якісна фурнітура
- двері металеві з терморозривом Abwehr
- внутрішня поверхня стін не вимагає додаткового оздоблення, та готова до фінішного шпаклювання.
- бетоні сходи, чорнова підлога
- площа ділянки 12 соток, правильної форми
- свердловина
- електрика
- по вулиці газ та центральне водопостачання
Планування: На першому поверсі розташована простора кухня-студія з виходом на терасу, санвузол і окрема кімната під кабінет, котельна. На другому поверсі передбачено санвузол для ванної, гардероб і три спальні.
Для комфорту зроблені отвори в стінах під розетки, вимикачі, виводи води, під камін та інше. Також є готові схеми для прив’язки сантехніки і електрики, дизайн-проект для кожного приміщення.
Додатково можна замовити широку терасу, гараж для авто або навіс, вхідну групи та паркан.
Важливою властивістю будинку є теплова інерція (ефект термосу) - здатність матеріалів поглинати тепло та зберігати його у міру нагрівання.
За рахунок стійкості до навантажень і впливу зовнішніх факторів – вітру, вологи, спеки та холоду – наші якісні залізобетонні будинки слугують понад 100 років.
Залізобетон не горить, відрізняється хімічною та біологічною стійкістю.
В умовах війни, перший поверх у приміщеннях без вікон (котельна, санвузел) слугує надійним укриттям, адже стійкість матеріалу до ударної хвилі надвисока.
Ціна 105000 дол. Можливий безготівковий розрахунок.
Сучасний будинок в Дударкові - це чудова можливість для тих, хто шукає будинок в затишній локації та близько до міста. Не втрачайте свій шанс, телефонуйте прямо зараз!
Вигідна пропозиція чекає саме на Вас!

Оптимальний вибір будинків, дач та земельних ділянок
Запропонуємо найкращий варіант у місті чи передмісті

Великий вибір земельних ділянок для будівництва вашого нового будинку
Вибираємо для вас земельну ділянку, пропонуємо послуги дизайну та будівництва будинків під ключ

Повний юридичний супровід клієнта
Супровід клієнта від моменту заявки, у момент та після здійснення угоди

10% знижка на продаж та купівлю нерухомості взамін
Компанія надає комплексне рішення щодо продажу та купівлі нової нерухомості взамін