

















Ціна за м2: 650 $
Київська
Бучанський
Крюківщина
Лобановського
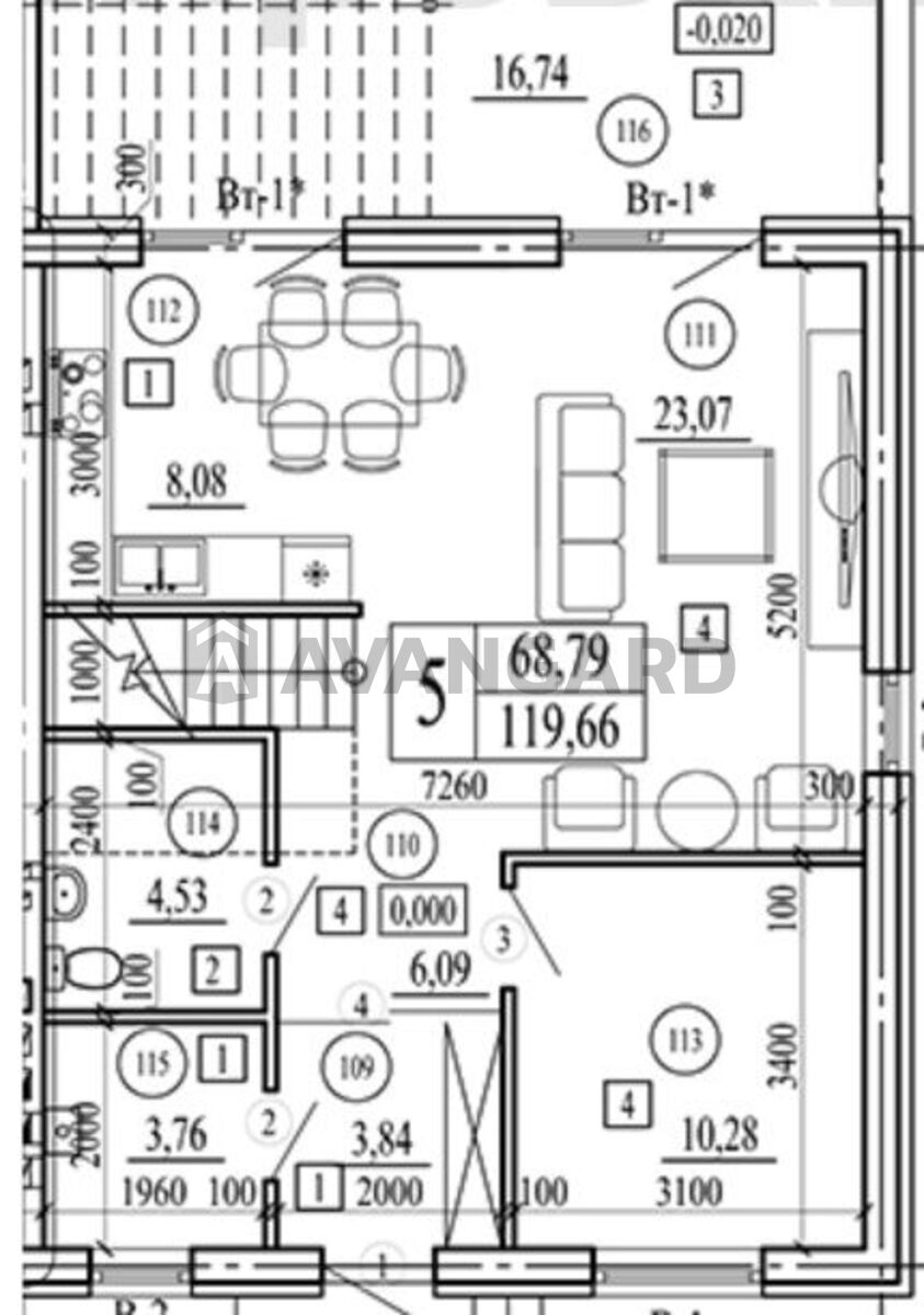
Продаж будинку (дуплекс) Київська обл. С. Крюківщина.
Готовий отримати свою мрію у затишному та елітному місці. Продається власний будинок за доступні кошти 78000$.Територія закрита, чудові сусіди. Київська обл. с. Крюківщина , вул. Лобановського Площа 120м2, два поверхи, фасадні стіни газоблок, утеплення 100мм. водопостачання (свердловина ) та каналізація(септік) Заведено 16 кВт.(3 фази). 1 перший рівень Кухня - вітальня, два сан. вузли, кабінет,тераса. Другий рівень Три кімнати,санвузол. Можливий варіант з максимальною комплектацією: Перелік додаткових мереж та робіт: Розводка електрики (без автоматів) Розводка гарячої та хол.води + каналізація на двох поверхах до місць споживання Опалення : Розводка теплої підлоги на двох поверхах +2 колектори та насоси. Фінішна стяжка на підлозі (два поверхи ) штукатурка гіпсова на стінах (два поверхи )-вартість з буде будинку становити - 78000$ Асфальтний підїзд, до дороги на Київ, 1км.Поруч озеро, лісосмуга , розвинена інфраструктура. Телефонуйте, домовилися на перегляд у зручний для Вас час. (можливий продаж через іпотеку ). Звертайтесь, допоможемо придбати, є інші варіанти.

Оптимальний вибір будинків, дач та земельних ділянок
Запропонуємо найкращий варіант у місті чи передмісті

Великий вибір земельних ділянок для будівництва вашого нового будинку
Вибираємо для вас земельну ділянку, пропонуємо послуги дизайну та будівництва будинків під ключ

Повний юридичний супровід клієнта
Супровід клієнта від моменту заявки, у момент та після здійснення угоди

10% знижка на продаж та купівлю нерухомості взамін
Компанія надає комплексне рішення щодо продажу та купівлі нової нерухомості взамін