










Ціна за м2: 531 $
Хмельницька
Хмельницький
Лезнєво
3-й Віденський проїзд, 3
Новий сучасний будинок у Лезнево!
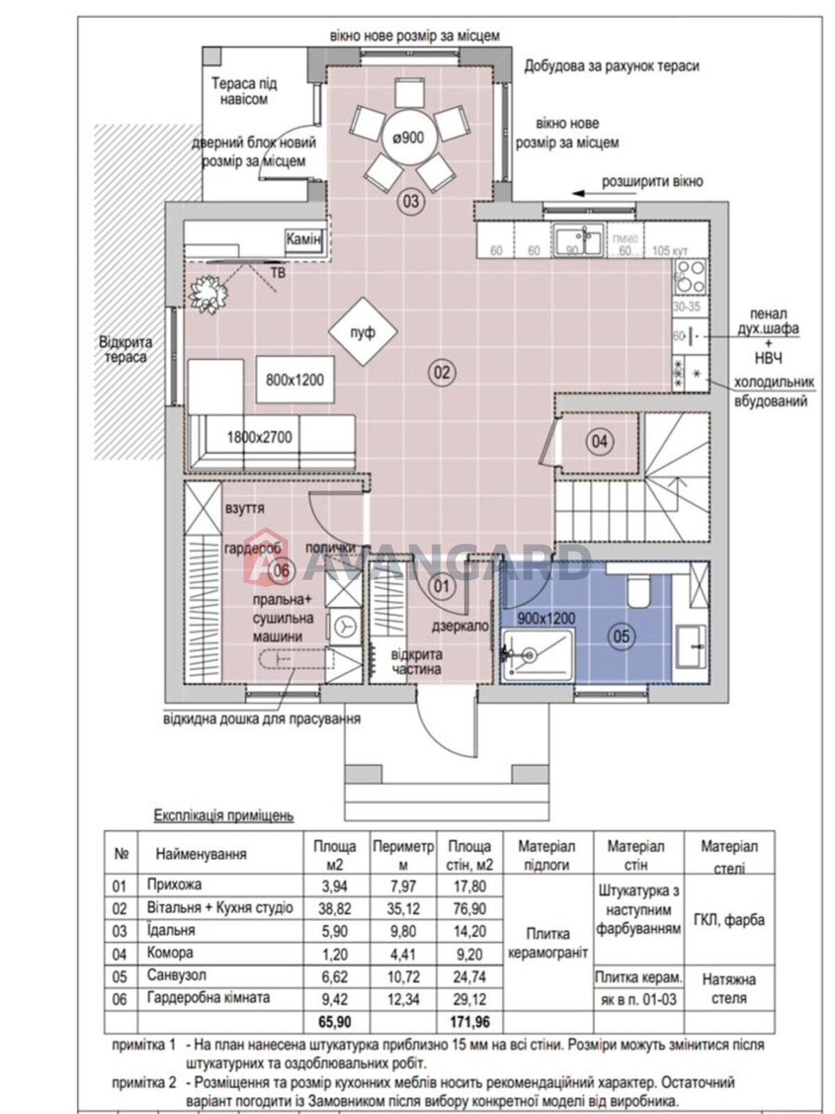
Продається просторий будинок площею 147 м? на ділянці 6 соток у мальовничому районі Лезнево.
Будинок збудований з якісних матеріалів, утеплений дах (мінеральна вата), антизламні вікна, теплі двері з магнітними замками. Планування:
5 кімнати
велика кухня-вітальня
2 санвузли
відкрита тераса Можливість добудови гаража та підвалу. У подарунок дизайнерський проєкт інтерєру! Район з гарною інфраструктурою, тихе та комфортне місце для життя.

Оптимальний вибір будинків, дач та земельних ділянок
Запропонуємо найкращий варіант у місті чи передмісті

Великий вибір земельних ділянок для будівництва вашого нового будинку
Вибираємо для вас земельну ділянку, пропонуємо послуги дизайну та будівництва будинків під ключ

Повний юридичний супровід клієнта
Супровід клієнта від моменту заявки, у момент та після здійснення угоди

10% знижка на продаж та купівлю нерухомості взамін
Компанія надає комплексне рішення щодо продажу та купівлі нової нерухомості взамін