
























Ціна за м2: 568 $
Вінницька
Вінницький
Агрономічне
пров.Свободи
Агрономічне, Свободи провулок, 52, ракушняк, ЦІНА ЗНИЖЕНА .ТЕРМІНОВИЙ ПРОДАЖ великого та гарного будинка в селі Агрономічному , ( 3км. від Вінниці) на провулку Свободи. ЦІНА за кв.м.-567 $ США. ТОРГ,
Будинок на дві половини , це чудовий варіант для комфортного проживання як для великої родини так і можливість для двох сімей.
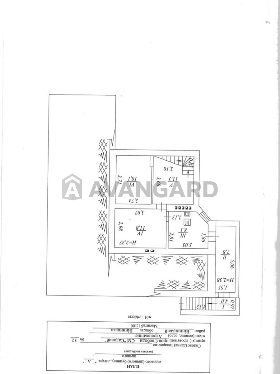
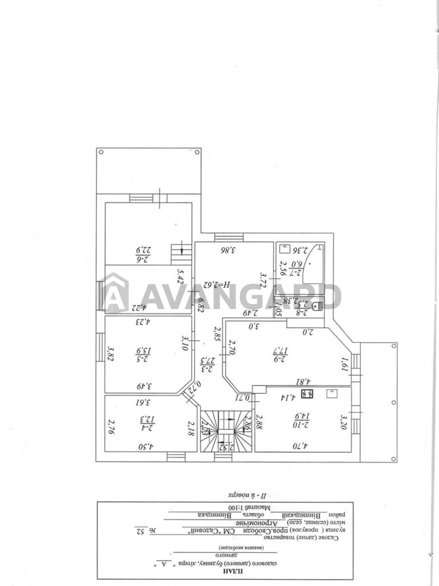
Загальна площа будиночка має 295, 3м. та розташований на 18 сотках землі і складається з двох частин .
Від будинка до озера 100 метрів, оточує природна краса та тиша, спів птахів і душевний спокій. Неподалік знаходиться аптеки, магазину, супермаркет та зупинка громадського транспорту. Також є дитячий садок та школа.
Побудований в 2015 з кримського ракушечника з повітряним прошарком, що дозволяє тримати тепло взимку, а влітку прохолоду.
Будувався будинок чисто для себе і своєї сім'ї, і тому будували лише з якісних матеріалів нешкідливих здоров'ю. Між поверхами залізо-бетонне перекриття, вікна 'Екопласт' та підведено світло 30кВт. Квартира розташована на першому поверсі має загальну площу 88.5м., яка складається з трьох кімнат: 15.7м, 12.6м., 17.1м., кухня 16.9м.з виходом на терасу, ванну 8 м.та санвузол 1.8м. У коридорі та кухні тепла підлога, будинок в гарному житловому стані, плитка у ванні, санвузлі та кухні, стіни під фарбування.
На другому поверсі розташована ще одна повноцінна квартира, яка складається з трьох кімнат 15.9м., 22.9м., 17.7м., гардеробна кімната 12.3м., кухня 14.9м., ванна 6м. та санвузла 2.5м.
Кімната 22.9м. у двох рівнях, з виходом на терасу. Кухня та одна кімната з виходом на терасу та видом на озеро, зробленно чорновий ремонт, штукатурка та розведенна електрика.
Підвал має загальну площу 53.3м. та складається з нежитлових приміщень:
10.1м., 11.5м., 11.8м. Погріб для зберігання овочів та фруктів.7, 8 кв.м.
Котельня 8, 1м., де розташовані: електрокотел 'KOSPEL' 24кВт, який розрахований на опалювальну площу 320кв.м. Твердопаливний котел 'Корді' 30кВт.,
Бойлер 'ATLANTIK' на 100 літрів води. Гараж 21м. та вигрібна яма 15.3 куб.
На ділянці зростає сад з фрукт. деревами,

Оптимальний вибір будинків, дач та земельних ділянок
Запропонуємо найкращий варіант у місті чи передмісті

Великий вибір земельних ділянок для будівництва вашого нового будинку
Вибираємо для вас земельну ділянку, пропонуємо послуги дизайну та будівництва будинків під ключ

Повний юридичний супровід клієнта
Супровід клієнта від моменту заявки, у момент та після здійснення угоди

10% знижка на продаж та купівлю нерухомості взамін
Компанія надає комплексне рішення щодо продажу та купівлі нової нерухомості взамін