










Ціна за м2: 766 $
Дніпро
Індустріальний
Калинівський мкр.
Холодильна вул.
Доступна квартира в сучасному ЖК «Вертикаль» — оптимальний вибір для комфортного життя!
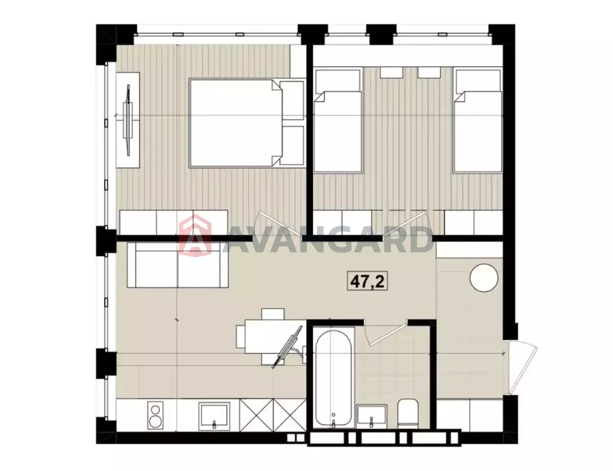
2-х кімнатна квартира площею 47м? з можливістю гнучкого планування:
Кухня-вітальня + дві окремі спальні
або просторі зони для вашого комфорту.
? Особливості цієї пропозиції:
Будинок введен в експлуатацію у березні 2024 року, а завдяки професійній команді ремонт можна замовити вже зараз. Ви зможете заселитися у свою готову квартиру всього через 3 місяці.
2 світлові прорізи, що додають приміщенню природного світла та затишку.
? Про ЖК «Вертикаль»:
Надійний забудовник «Баловська компанія», відомий якістю своїх проєктів.
Закритий двір з комерційними приміщеннями на першому поверсі: магазини, кав’ярні, сервіси.
Панорамні вікна та якісне будівництво з урахуванням сучасних стандартів.
Розташування з розвиненою інфраструктурою: поруч школи, дитячі садочки, магазини та лікарня.
ТРЦ «Караван» у пішій доступності: кінотеатри, ресторани, магазини, супермаркети.
? Вигідна ціна
Також у продажу є інші варіанти квартир у ЖК Вертикаль.
Забудівник може допомогти з ремонтом частково або повністю, також під ключ з меблями та технікою.

Оптимальний вибір квартир на вторинному ринку
Тільки реальні об'єкти житлової нерухомості

Великий вибір об'єктів в новобудовах з правом власності
Цікаві пропозиції від власників та інвесторів

Повний юридичний супровід клієнта
Супровід клієнта від момента заявки, в момент та після здійснення угоди

10 % знижка на продаж та купівлю нерухомості взамін
Компанія надає комплексне рішення з продажу та купівлі нової квартири взамін