















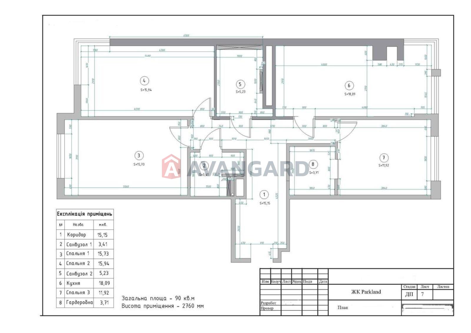
Ціна за м2: 2 124 $
 Київ
Солом'янський
Жуляни мкр.
Юнацька, 6
м. Васильківська

Оптимальний вибір квартир на вторинному ринку
Тільки реальні об'єкти житлової нерухомості

Великий вибір об'єктів в новобудовах з правом власності
Цікаві пропозиції від власників та інвесторів

Повний юридичний супровід клієнта
Супровід клієнта від момента заявки, в момент та після здійснення угоди

10 % знижка на продаж та купівлю нерухомості взамін
Компанія надає комплексне рішення з продажу та купівлі нової квартири взамін