












Київ
Шевченківський
Татарка мкр.
Шмидта отто ул., 35
м. Лук'янівська
Оренда комерційного приміщення, вул. Шмідта Отто, 35
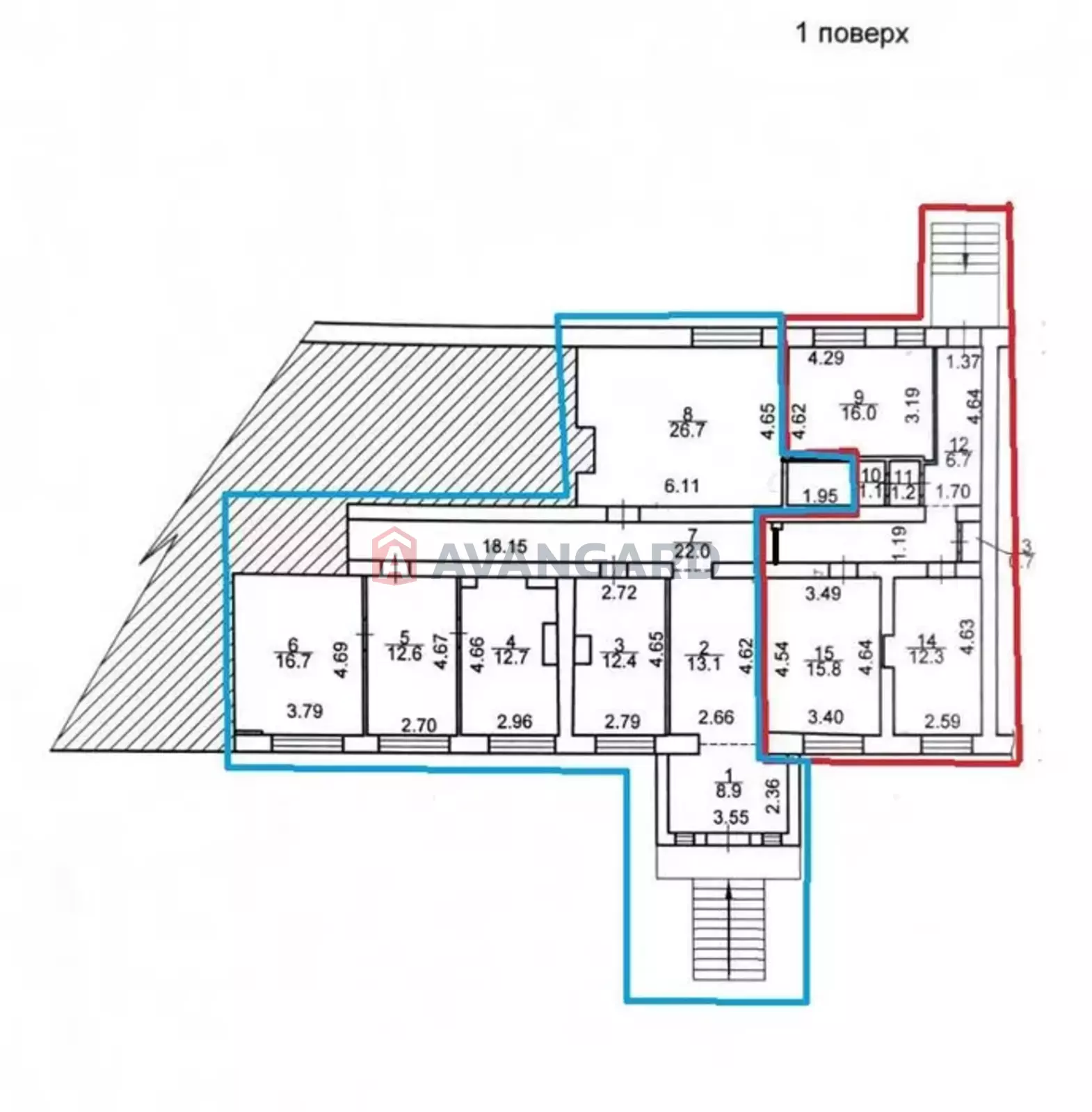
Приміщення загальною площею 120 кв.м., висота стелі 3,8м, розташовано на 1 поверсі 9 поверхового житлового будинку.
Фасад.
Фасадний вхід та вікна.
Місце для реклами.
Чудово під салон краси, клініку, офіс, та інше
Високий трафік як автомобільний, так і пішохідний.
Сусіди АТБ, Екомаркет

Великий вибір реальних об'єктів оренди
Надаємо послуги з підбору житлової та комерційної нерухомості у місті та передмісті

Працюємо на результат
Оплата комісійних лише за результатом вселення та укладання договору на послуги компанії

Юридична перевірка та укладання договору при вселенні
Особисто перевіряємо власників та документи на об'єкт, укладаємо договір оренди

Центр прийому заявок на здачу та знімання об'єктів
Кожна заявка обробляється нашими операторами та передається у роботу фахівцям